Plans have been submitted for a 72-bed care home in Sherford, marking another step in the continued growth of the community off Aquila Drive.
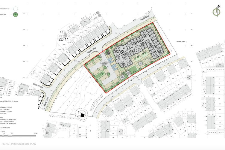
The application (0400/26/ARM), prepared by KWL Architects on behalf of Mercroft (Sherford) Limited, seeks permission to build on a vacant 1.12-acre (4,539 square metre) site within the wider Sherford masterplan area. The proposal follows the 2025 approval of a further 500 homes in the town, as development continues across the new settlement.
The three-storey building would provide specialist dementia care, residential care and respite care within Use Class C2. According to the Design and Access Statement, the home has been designed as a “communal hub”, with circulation arranged so that shared spaces encourage interaction between residents and visitors.
All 72 bedrooms would be en-suite and include accessible wet room bathrooms. Communal lounges and dining areas are proposed on every floor. Shared facilities would include a cinema, café, hairdresser and beauty salon, spa bathrooms and a private dining room for family use. Staff rooms, changing facilities, a kitchen and laundry are also incorporated within the layout.
Landscaped gardens form a key part of the scheme. Plans show raised planters, accessible footpaths and a series of communal seating areas. All ground floor bedrooms would open onto private patios with access to garden space, while a south-facing terrace is proposed outside the main lounge and dining areas for residents who are less mobile. Private garden areas would be enclosed by 1800mm hoop-top railings and accessed only through the building or via a secure maintenance gate.
In design terms, the scheme follows the Sherford Neighbourhood Design Code for Character Area 2D. Proposed materials include white render, wood-effect horizontal weatherboard cladding and mixed reconstituted stone, with dark grey window frames. The mass of the building is broken into smaller blocks and flat roofs are proposed to limit overall height.
The application also includes 32 parking spaces, including two disabled bays, alongside a delivery bay and ambulance bay. For staff and visitors using alternative transport, a secure cycle store for ten bicycles is proposed and the site is served by bus routes 5, 4 and 80 - with connections to Plymouth, Elburton, Paignton and Ridgeway.
Developers state the scheme would provide specialist accommodation for older people in Sherford and create full-time employment opportunities for local residents.
Find out about planning applications that affect you by visiting the Public Notice Portal.
You can learn more about planning applications that affect YOUR neighbourhood by visiting our Public Notices Portal.





Comments
This article has no comments yet. Be the first to leave a comment.