Home
News
Property
Sport
What’s On
Send your story
Public Notices
Offers
Subscription
More
Writing on behalf of the Tooke family, Seb’s father Stephen has thanked the community for its overwhelming support at his son’s Celebration of Life and for the thousands of pounds raised so far for suicide prevention charity CALM.
Rugby
England duo help bolster Chiefs for crunch Cup encounter
Henry Slade and Greg Fisilau have both been released from England duty to re-join Rob Baxter’s squad
Entertainment
Review: Mamma Mia! The Party unleashes your inner Dancing Queen
Ivybridge care home earns national recognition for veteran support
Deceased found on Dartmoor believed to be missing Newton Ferrers man
South Hams council tax bills higher than Kensington and Chelsea
Camels Head fire station rebuild plans announced
Wembury Marine Centre hosts February Rockpool Safari
Free SIM cards boost digital access for low-income families
Devon Air Ambulance Charity Shop in Kingsbridge reopens on Saturday
Kingsbridge community to nominate local heroes for awards
South West Water cuts storm overflow use amid wetter year
Palestinian supper and storytelling evening in Tiverton
Chiefs announce capture of All Blacks star for next season
Football
Previewing this weekend’s football across Devon 21/02
Devon skeleton star gutted to miss out on Olympic medal
Argyle eye play-off push after stunning away run
Some Peninsula League football returns
Golf
Innovative formats for Dartmouth and Thurlestone golfers
Opinion
Richard Howell | UK's 'devastating decline' in litter crisis
Tails From South Moor by Vet James McIntosh | Barney Trouble
Tesco joins British Heart Foundation for free blood pressure checks
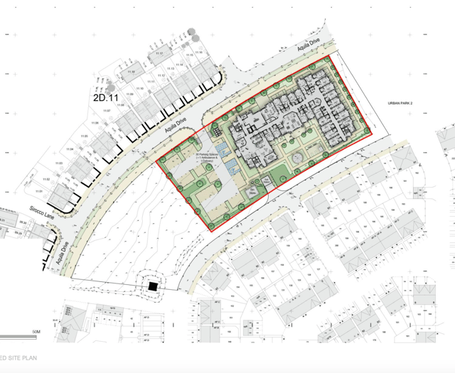
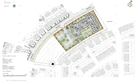
Sherford set for new specialist dementia care home
Miss Saigon: The Legend Reborn in Plymouth
Tree warden celebrated with ceremonial tree planting
Hospital Radio Plymouth's Seven 2026 Award Nods
Female surgeon's portrait features in exhibition
South Devon town bags ownership of popular open space
Yellow cold-health alert issued as new data reveals mortality link
Totnes young people explore filmmaking and local heritage
NHS South West tops one million surgeries milestone
Owned or licensed to Tindle Newspapers Ltd. | Independent Family-Owned Newspapers | Copyright & Trade Mark Notice & 2013 - 2026